| ID # | 943681 |
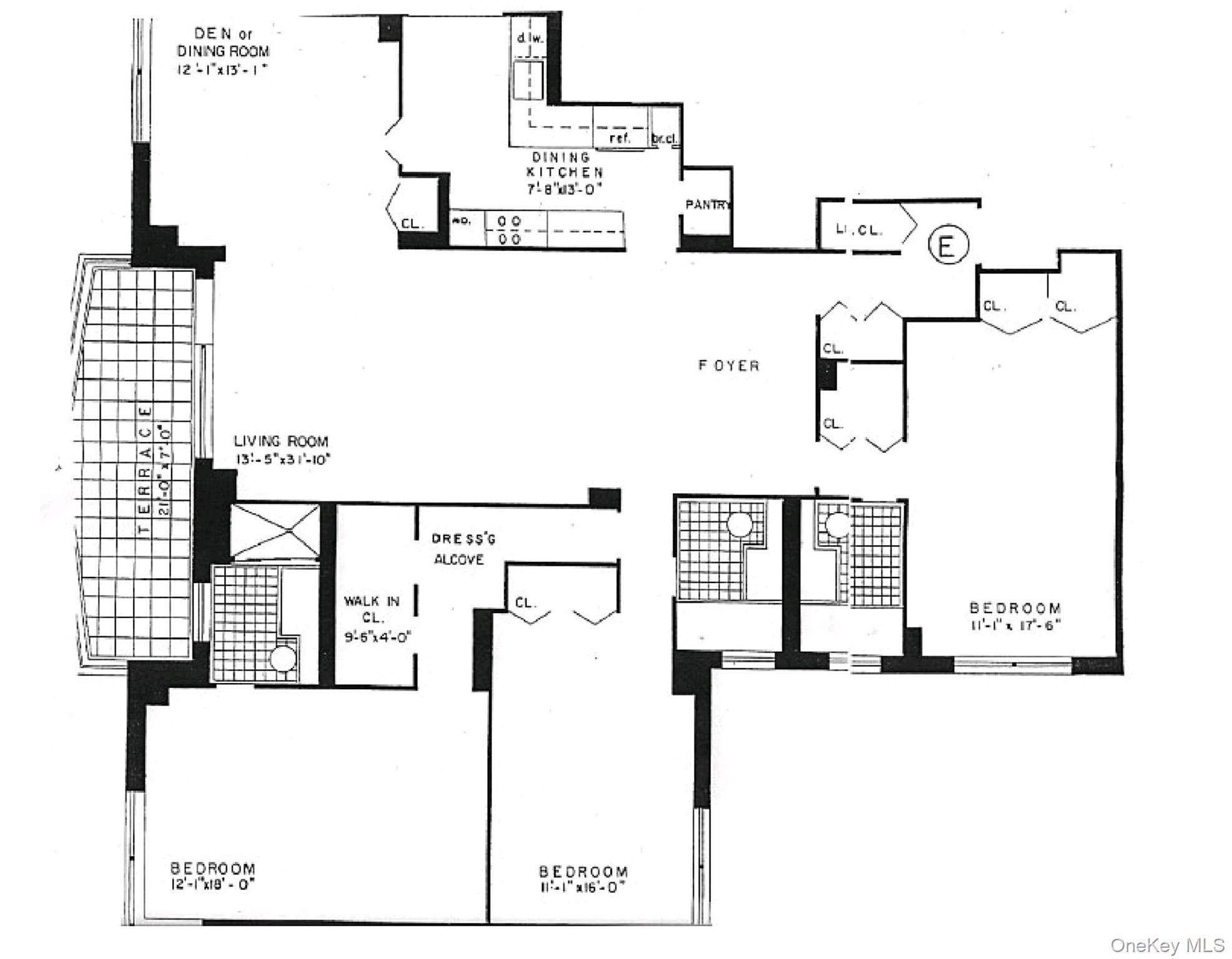
| Dettagli | 3 camere da letto, 3 bagni, lavastoviglie, lavatrice, garage, condizionatore, Interno: 1688 ft2, 157m2 (DOM): 4 giorni |
| Anno di costruzione | 1970 |
| Spese di manutenzione | $2,726 |
| Condizionatore | Aria condizionata centrale |
![]() |
Raramente Disponibile Sponsor Tre Camere da Letto Ristrutturate! Benvenuto a casa in questo angolo ristrutturato con tre camere da letto, tre bagni e una terrazza. Molta luce con vista a est, sud e ovest. Entra direttamente in questa linea ricercata caratterizzata da stanze spaziose, cucina abitabile, zona pranzo e abbondanti armadi. Ulteriori vantaggi includono nuovi pavimenti, nuovi elettrodomestici e nuove porte degli armadi. C'è una valutazione di capitale mensile di $432.79 fino a 12/2026. Questo co-op con servizio completo offre un portiere 24 ore su 24, un custode residente, lavanderia in loco, lavanderia/tailleur, centro fitness con piscina interna, palestra, corsi di esercizio di ogni tipo e un magnificamente progettato tetto verde paesaggistico all'aperto con cascata, gazebo, focolare, sentieri e aree per sedersi e rilassarsi. Lavatrice/asciugatrice sono consentite nell'appartamento, il parcheggio interno è disponibile e i cani sono benvenuti. Il Whitehall si trova nel centro di Riverdale a pochi passi da negozi, ristoranti, trasporti, parchi, scuole e luoghi di culto. La biblioteca pubblica, i campi da tennis e i campi da baseball di Seton Park sono dall'altra parte della strada. Un viaggio di 25 minuti per NYC tramite Metro North e un tragitto di 15 minuti per Midtown Manhattan rende questa una casa davvero speciale in uno dei migliori edifici di Riverdale. Nessuna approvazione del Consiglio.
Rarely Available Renovated Sponsor Three Bedroom! Welcome home to this newly renovated corner three bedroom, three bathroom with a terrace. Lots of light with eastern, southern and western views. Move right in to this sought after line featuring spacious rooms, eat-in kitchen, dining L, and abundant closets. Additional perks include new floors, new appliances, and new closet doors. There is a monthly capital assessment of $432.79 through 12/2026. This full service co-op features a 24-hour doorman, live-in Superintendent, on-site laundry room, dry cleaner/tailor, health club with indoor pool, gym, exercise classes of all kinds, and a magnificently designed landscaped outdoor green roof with waterfall, gazebo, fire pit, walking path, and sitting areas for relaxing. Washer/dryers are permitted in the apartment, indoor parking is available, and dogs are welcome. The Whitehall is located in central Riverdale within walking distance of shops, restaurants, transportation, parks, schools, and houses of worship. The Public Library, tennis courts and baseball fields at Seton Park are across the street. A 25 minute commute to NYC via Metro North and a 15 minute drive to midtown Manhattan makes this a truly special home in one of Riverdale's premiere buildings. No Board Approval. © 2025 OneKey™ MLS, LLC







