| ID # | RLS20072465 |
| Dettagli | 7 camere da letto, 3 bagni, Interno: 3700 ft2, 344m2, 2 unità nell'edificion, L'edificio ha 2 piani (DOM): 2 giorni |
| Anno di costruzione | 1935 |
| Tasse (annuali) | $8,832 |
| Autobus | 3 minuti: B17, B8 |
| 7 minuti: B15, B35, B47 | |
| 8 minuti: B60 | |
| 10 minuti: B7 | |
| Treno (LIRR) | 1.9 miglia da "East New York" |
| 2.6 miglia da "Nostrand Avenue" | |
![]() |
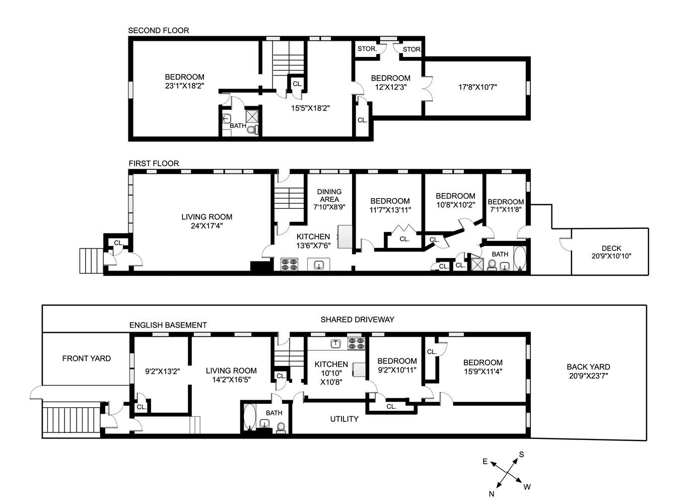
Porta il tuo architetto e appaltatore in questa casa bifamiliare in mattoni completamente indipendente che aspetta la tua ristrutturazione.
Edificio: bifamiliare completamente indipendente Dimensioni: 19' x 70' Superficie abitabile approssimativa: 3.700 piedi quadrati Terreno: 23,67' x 100' Viale condiviso, deck posteriore Situata vicino all'ospedale Brookdale e al Brooklyn Terminal Market Ideale per ristrutturazione o conversione.
Read the English version or choose another language
This information is not verified for authenticity or accuracy and is not guaranteed and may not reflect all real estate activity in the market. © 2026 The Real Estate Board of New York, Inc., All rights reserved.







