| ID # | RLS20078055 |
| Dettagli | 2 camere da letto, 2 bagni, Interno: 2000 ft2, 186m2, 2 unità nell'edificion, L'edificio ha 2 piani (DOM): 4 giorni |
| Anno di costruzione | 1901 |
| Tasse (annuali) | $5,160 |
| Autobus | 3 minuti: B103, B17, BM2 |
| 4 minuti: B42 | |
| Treno (LIRR) | 2.9 miglia da "East New York" |
| 4.2 miglia da "Nostrand Avenue" | |
![]() |
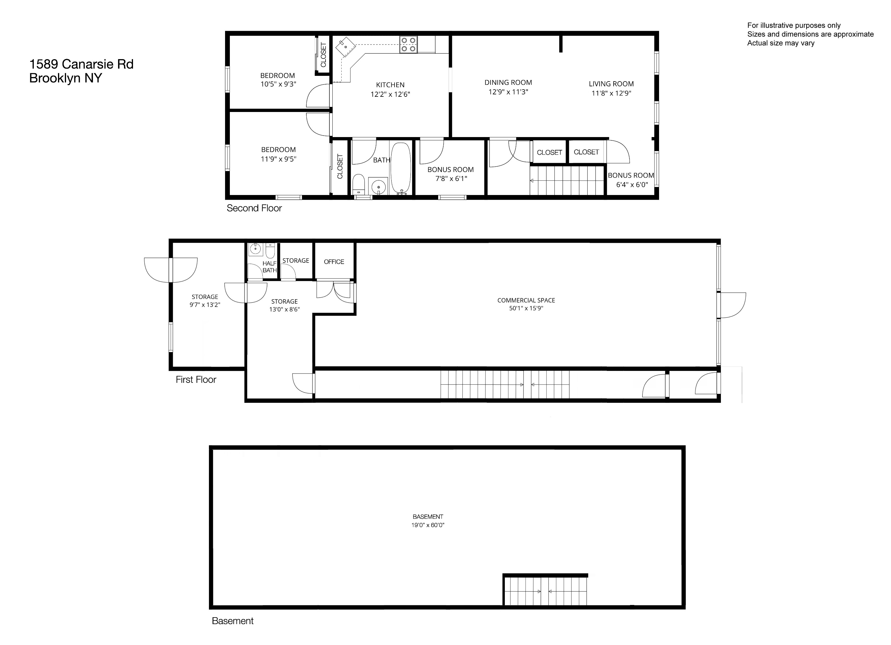
Eccezionale opportunità di acquisire un edificio a uso misto di 2.000 piedi quadrati nella zona di Canarsie a Brooklyn. Questa proprietà che genera reddito presenta una lavanderia completamente operativa al piano terra e un appartamento residenziale con due camere da letto sopra, offrendo una forte combinazione di entrate commerciali e residenziali.
Lo spazio commerciale è attualmente operativo come lavanderia di quartiere, dotata di circa 18 lavatrici e 20 asciugatrici, e serve la comunità residenziale circostante beneficiando di una domanda costante giornaliera. L'appartamento con due camere da letto al secondo piano fornisce un ulteriore reddito da affitto, rendendo la proprietà ben adatta per gli investitori in cerca di un asset a uso misto stabile o per un proprietario-operatori che desidera gestire la propria attività mentre riscuote l'affitto residenziale.
La proprietà include anche un parcheggio accessibile in loco, una preziosa comodità sia per i clienti che per i residenti. Posizionata su Canarsie Road, un corridoio molto trafficato, l'edificio beneficia di una forte densità di quartiere e visibilità.
Questa è un'opportunità rara per possedere una proprietà a uso misto chiavi in mano in un quartiere in crescita di Brooklyn con un forte potenziale di reddito.
Caratteristiche della proprietà:
Edificio a uso misto (commerciale + residenziale)
Dimensioni dell'edificio di circa 2.000 piedi quadrati
Lavanderia al piano terra con 18 lavatrici e 20 asciugatrici
Unità residenziale con due camere da letto al secondo piano
Parcheggio accessibile in loco
Posizione ad alta visibilità in Canarsie
Forte potenziale di investimento e reddito
Exceptional opportunity to acquire a 2,000 square foot mixed-use building in the Canarsie section of Brooklyn. This income-producing property features a fully operational laundromat on the ground floor and a two-bedroom residential apartment above, offering a strong combination of commercial and residential revenue.
The commercial space is currently operating as a neighborhood laundromat equipped with approximately 18 washers and 20 dryers, serving the surrounding residential community and benefiting from consistent daily demand. The second-floor two-bedroom apartment provides additional rental income, making the property well-suited for investors seeking a stable mixed-use asset or for an owner-operator looking to run their own business while collecting residential rent.
The property also includes accessible on-site parking, a valuable amenity for both customers and residents. Positioned on Canarsie Road, a well-traveled corridor, the building benefits from strong neighborhood density and visibility.
This is a rare opportunity to own a turnkey mixed-use property in a growing Brooklyn neighborhood with strong income potential.
Property Features:
Mixed-use building (commercial + residential)
Approximately 2,000 sq ft building size
Ground-floor laundromat with 18 washers and 20 dryers
Second-floor two-bedroom residential unit
Accessible on-site parking
High visibility location in Canarsie
Strong investment and income potential
This information is not verified for authenticity or accuracy and is not guaranteed and may not reflect all real estate activity in the market. © 2026 The Real Estate Board of New York, Inc., All rights reserved.







