| ID # | RLS20078139 |
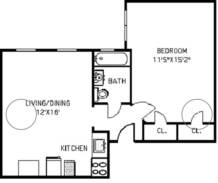
| Dettagli | 1 camera da letto, 1 bagno, lavatrice, asciugatrice, Interno: 502 ft2, 47m2, 59 unità nell'edificion, L'edificio ha 6 piani (DOM): 0 giorni |
| Anno di costruzione | 1926 |
| Spese di manutenzione | $504 |
| Autobus | 1 minuto: B48 |
| 4 minuti: B49 | |
| 5 minuti: B41 | |
| 6 minuti: B43 | |
| 7 minuti: B16, B45 | |
| 9 minuti: B44+ | |
| 10 minuti: B44 | |
| Metropolitana | 4 min per S |
| 5 min per 2, 3, 4, 5 | |
| 8 min per B, Q | |
| Treno (LIRR) | 1 miglia da "Nostrand Avenue" |
| 1.4 miglia da "Atlantic Terminal" | |
![]() |
Perché non avere la casa che ami con il possesso che meriti? Affrettati a vedere questo luminoso appartamento con una camera da letto e una manutenzione eccezionalmente BASSA nel quartiere alla moda e comodo di Crown Heights a Brooklyn. Le serene viste sul cortile offrono uno spazio per concentrarsi e un rifugio dallo stress della vita cittadina. Questo appartamento progettato in modo efficiente ha una camera da letto di dimensioni King con ampio spazio per un comò e una scrivania, un affascinante ingresso, un bagno luminoso con finestra e una cucina aperta che consente una vita e una cena senza soluzione di continuità. La cucina aggiornata può anche ospitare una lavatrice e asciugatrice in unità con l'approvazione del consiglio. Splendidi pavimenti in legno, due ampi armadi nella camera da letto, soffitti alti nove piedi e sole pomeridiano completano il quadro.
Situato tra Prospect Heights e Prospect Lefferts Gardens, questo cooperativa pet-friendly con ascensore ha un custode presente, una gabbia di stoccaggio al livello della hall per i pacchi e un deposito per biciclette. Costruito nel 1926, questo gioiello art deco a sei piani si trova in una zona comoda, con le linee 2, 3 e 4, 5 a pochi isolati di distanza. Questa casa potrebbe essere il tuo trampolino di lancio per esplorare gli acri di bellezze naturali presso il vicino Prospect Park e il Giardino Botanico di Brooklyn. Pub, caffè e negozi unici abbondano. Ad esempio, se scegli di non installare la tua lavatrice e asciugatrice in unità, puoi controllare il vicino Washtub di Pearl Lee, dove puoi gustare un hamburger e una birra mentre lavi e pieghi i vestiti!
Questa è una cooperativa HDFC con requisiti di reddito massimo generosi che consentono il 165% del reddito medio di zona (AMI) per la domanda. Ad esempio, per un nucleo familiare di 1: $187,110, 2: $213,840, 3: $240,570. Si tratta di un edificio ben mantenuto a sei piani costruito intorno al 1926 con ascensore, custode, deposito biciclette, deposito pacchi e deposito personale (lista d'attesa). Sebbene non ci sia lavanderia nell'edificio, è consentita una lavatrice e asciugatrice in unità con l'approvazione del consiglio. C'è una valutazione di $50 al mese.
I punti salienti della zona includono: il mercato contadino del sabato nella vicina Grand Army Plaza, la Biblioteca Pubblica di Brooklyn, il Museo di Brooklyn, Prospect Park e Zoo, e il Medgar Evers College presso la CUNY. La vivace scena sociale offre vari stabilimenti come Arden, Agi's Counter, Chavela's, Patrick Steakhouse e Briscola Trattoria. A una fermata c'è il Barclays Center su Atlantic Avenue e dall'altra parte di Prospect Park c'è Park Slope. Prospect Park stesso è un asset locale straordinario con il Tennis Center, e il LeFrak Center offre canottaggio, pattinaggio a rotelle, kayak, pickleball e pattinaggio su ghiaccio in inverno, oltre al Duck Island Cafe & Bar vicino al lago.
Why not have the Home You Love with the ownership you deserve? Hurry to see this Bright One Bedroom with exceptionally LOW maintenance in the trendsetting and convenient Brooklyn neighborhood of Crown Heights. Serene courtyard views provide space to focus as well as an escape from the stresses of city living. This efficiently designed apartment has a King Sized bedroom with ample area for bureau and desk, a charming entry foyer, bright, windowed bath and an open kitchen affording seamless dining and living. The updated kitchen can also accommodate an in unit Washer & Dryer with board approval. Lovely hardwood floors, two spacious closets in the bedroom, nine foot ceilings and afternoon sun complete the picture.
Situated between Prospect Heights and Prospect Lefferts Gardens, this pet friendly, elevator co-op has a live in super, storage cage on the lobby level for packages, and bike storage. Built in 1926, this six-story art deco gem is in a convenient area with the 2,3 and 4,5 trains just a few blocks away. This home perch could be your launch pad to explore the acres of natural beauty at nearby Prospect Park and The Brooklyn Botanic Garden. Local pubs, cafes and unique stores abound. For example, if you choose to not install your own washer & dryer in unit, you can check out nearby Pearl Lee's Washtub, where you can have a burger & beer while you wash and fold!
This is an HDFC co-op with generous max income requirements allowing 165 percent of Area Median Income (AMI) for the application. For example, a household of 1: $187,110, 2: $213,840, 3: $240,570. This is a well maintained six story building built circa 1926 with elevator, live-in super, bike storage, package storage, and personal storage (waitlist). While there is no laundry in the building, in-unit washer & dryer is allowed with board approval. There is a $50 per month assessment.
Area highlights include: Saturday Farmer's Market at nearby Grand Army Plaza, Brooklyn Public Library, Brooklyn Museum, Prospect Park & Zoo, and Medgar Evers College at CUNY. The vibrant social scene offers diverse establishments such as Arden, Agi's Counter, Chavela's, Patrick Steakhouse and Briscola Trattoria. One Stop away is Barclays Center on Atlantic Avenue and on the other side of Prospect Park is Park Slope. Prospect Park itself is an extraordinary local asset with Tennis Center, and the LeFrak Center offers row boating, roller skating, kayaking and pickleball, and ice skating in winter, as well as the lakeside Duck Island Cafe & Bar.
This information is not verified for authenticity or accuracy and is not guaranteed and may not reflect all real estate activity in the market. © 2026 The Real Estate Board of New York, Inc., All rights reserved.







