| ID # | RLS20069253 |
| Dettagli | 3 camere da letto, 2 bagni, 1 mezzo bagno, lavastoviglie, lavatrice, 86 unità nell'edificion, L'edificio ha 13 piani (DOM): 52 giorni |
| Anno di costruzione | 1918 |
| Spese di manutenzione | $4,435 |
| Metropolitana | 2 min per 1 |
| 6 min per B, C | |
| 8 min per 2, 3 | |
![]() |
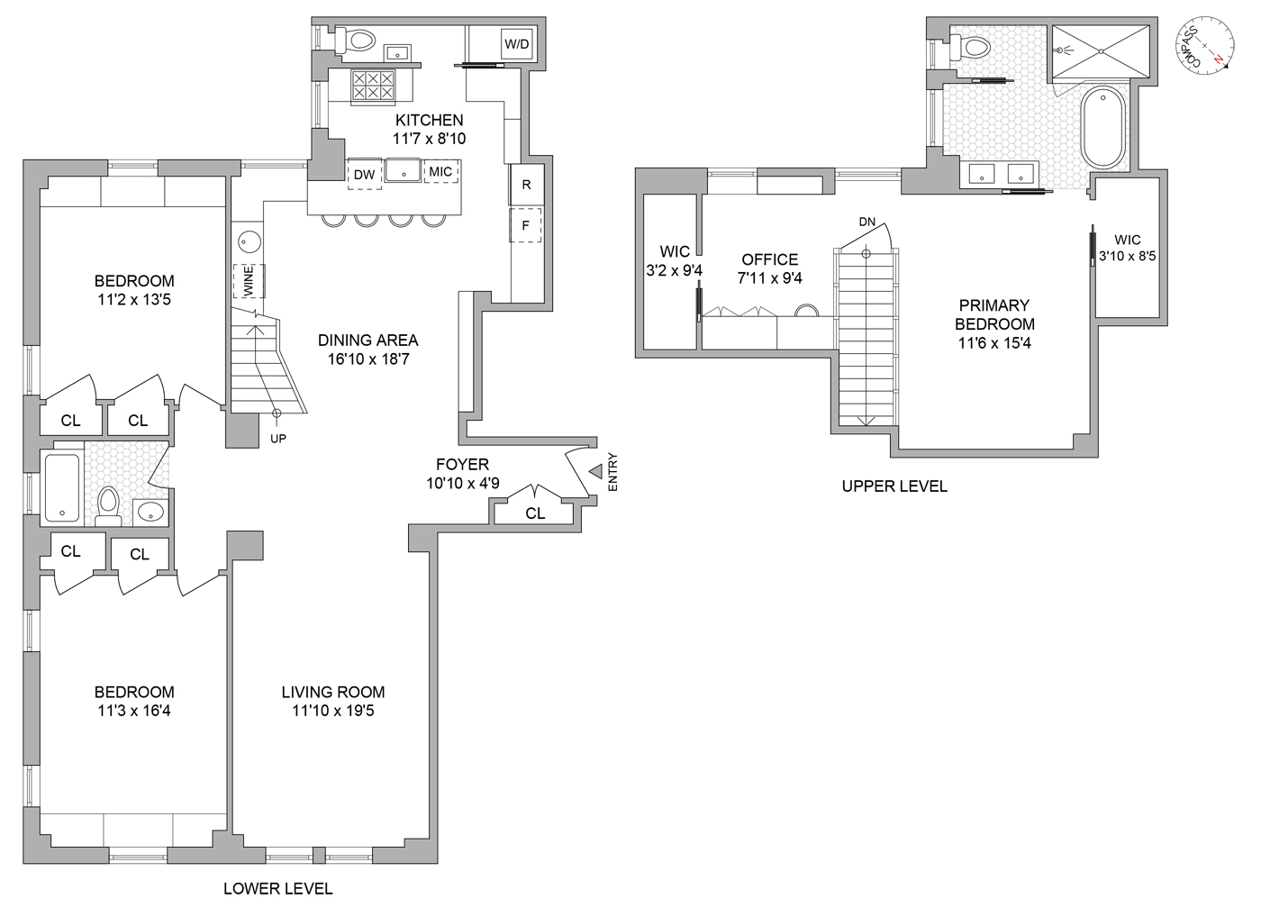
Questo appartamento XXX, duplex prebellico, si trova in un tipico isolato dell'Upper West Side vicino a Central Park. Questa casa, splendidamente ristrutturata, presenta tre camere da letto con uno spazio ufficio separato, due bagni e mezzo in marmo, aria condizionata e riscaldamento centralizzati, impianto surround, lavatrice e asciugatrice, con un piano di apertura e finiture in legno personalizzate in tutto l'appartamento.
La cucina aperta è dotata di un piano cottura Wolf a sei fuochi, un ampio isola che ospita 4 persone, tantissimo spazio di stoccaggio, un frigorifero Subzero sovradimensionato con cassetti congelatori separati e lavastoviglie Miele. Il wet bar in peltro ha acqua purificata e acqua calda istantanea affiancata da cassetti per bevande e un frigorifero per vino.
Le due camere da letto situate al piano inferiore sono generose per dimensione, con armadi su misura e ripostigli attrezzati. La camera matrimoniale si trova al piano superiore ed è dotata di due ampi armadi a muro, tende motorizzate, uno spazio ufficio separato con armadi su misura, un bagno in marmo en-suite con doppio lavabo, vasca da bagno separata, doccia e un wc privato.
Questo delizioso condominio dispone di un bellissimo giardino sul tetto, una sala giochi per bambini, deposito biciclette, unità di stoccaggio, una palestra, portiere a tempo pieno e sovrintendente residente. Animali domestici e pied-à-terre consentiti!
This XXX mint, prewar duplex can be found on a quintessential Upper West side block close to Central Park. This beautifully, gut renovated home features three bedrooms with a separate office space, two and a half marble bathrooms, central cooling and heating, surround sound, a washer dryer with an open floor plan and custom woodwork and finishes throughout.
The open kitchen has a six burner Wolf range, a large island that sits 4, tons of storage, an oversized Subzero fridge and separate freezer drawers and Miele dishwasher. The pewter wet bar has purified and instant hot water flanked by beverage drawers and a wine fridge.
The two bedrooms located on the lower level are generous in size with custom built-ins and outfitted closets. The primary bedroom can be found on the upper level with two large walk-in closets, motorized shades, a separate office space with custom built-ins, an en-suite marble bathroom with a double vanity, separate soaking tub, shower and a private wash closet.
This lovely cooperative has a beautiful roof garden, children’s play room, bike storage, storage units, a gym, full-time doorman and live-in super. Pets and pied-a-terre permitted!
This information is not verified for authenticity or accuracy and is not guaranteed and may not reflect all real estate activity in the market. © 2026 The Real Estate Board of New York, Inc., All rights reserved.







