| MLS # | 973994 |
| Dettagli | 1 camera da letto, 1 bagno, lavastoviglie, lavatrice, asciugatrice, garage, condizionatore, Interno: 835 ft2, 78m2 (DOM): 1 giorni |
| Anno di costruzione | 1975 |
| Spese di manutenzione | $1,481 |
| Tipo di riscaldamento | Aria calda |
| Condizionatore | Aria condizionata centrale |
| Autobus | 0 minuti: QM6 |
| 9 minuti: Q36, Q46, QM5, QM8 | |
| Treno (LIRR) | 1.8 miglia da "Little Neck" |
| 2 miglia da "Douglaston" | |
![]() |
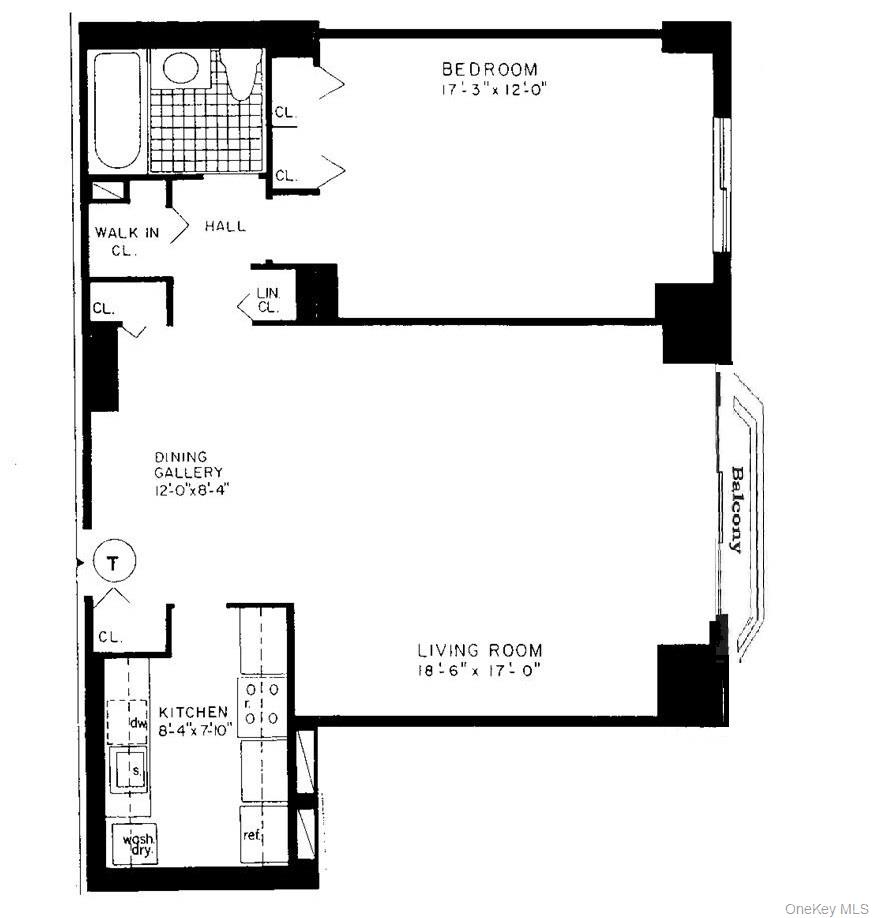
La camera da letto più grande con cucina open space deluxe e armadi su misura. Soggiorno soleggiato e spazioso con balcone a tutta altezza. Bagno di design con doccia separata. Ampia camera da letto principale con molto spazio di archiviazione. Molte caratteristiche squisite in questo appartamento unico! Chiama per una visita!
Largest Bedroom with Deluxe open kitchen with custom cabinets. Sunny and spacious living room with floor to ceiling balcony. Designer showroom bath with stall shower. Large Master bedroom with plenty of storage. Many exquisite features in this one of a kind apartment! Call for showing!
This information is not verified for authenticity or accuracy and is not guaranteed and may not reflect all real estate activity in the market. Listing courtesy of NSTowers Inc © 2026







